imagen1
imagen2
imagen3
imagen4
imagen5
imagen6
imagen7

 

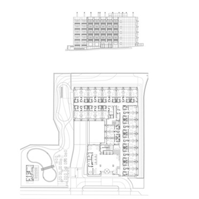
> HOTEL NH MARBELLA

 

 

 

EDIFICACIONES TIFAN

 

Marbella - España

 

 

 

 

 

 

 

 

 

 

 

 

 

 

 

Proyecto básico y de ejecución y Dirección de obra.
10.975 m2 - 163 habitaciones.

 

Situado en la Costa del Sol, el diseño resuelve de una manera eficaz los requerimientos funcionales optimizandolos espacios necesarios para las dotaciones.

 

La modulación de las unidades de las habitaciones se refleja en la imagen exterior mediante la disposición de los elementos de las terrazas: petos, muros laterales y jardineras. Se establece así una secuencia de entrantes, salientes y huecos, que junto a la combinación de los colores de los paneles de hormigón blanco y de las variedades de buganvillas recrean la tradición de los jardines colgantes en la arquitectura mediterránea.

 

| Español | English